Skip To Content

5676 Steubenville Pike.

Robinson Twp, PA 15136
  • $11
  • STATUS: Active
  • ON SITE: 324 Days
  • MLS #: 1683215
UPDATED: 39 min ago
$11
  • 0
    BEDS
  • 1.13
    ACRES
  • 0
    BATHS
  • 0
    1/2 BATHS
Neighborhood:
Type:
Commercial-Lease

School Ratings & Info

Description

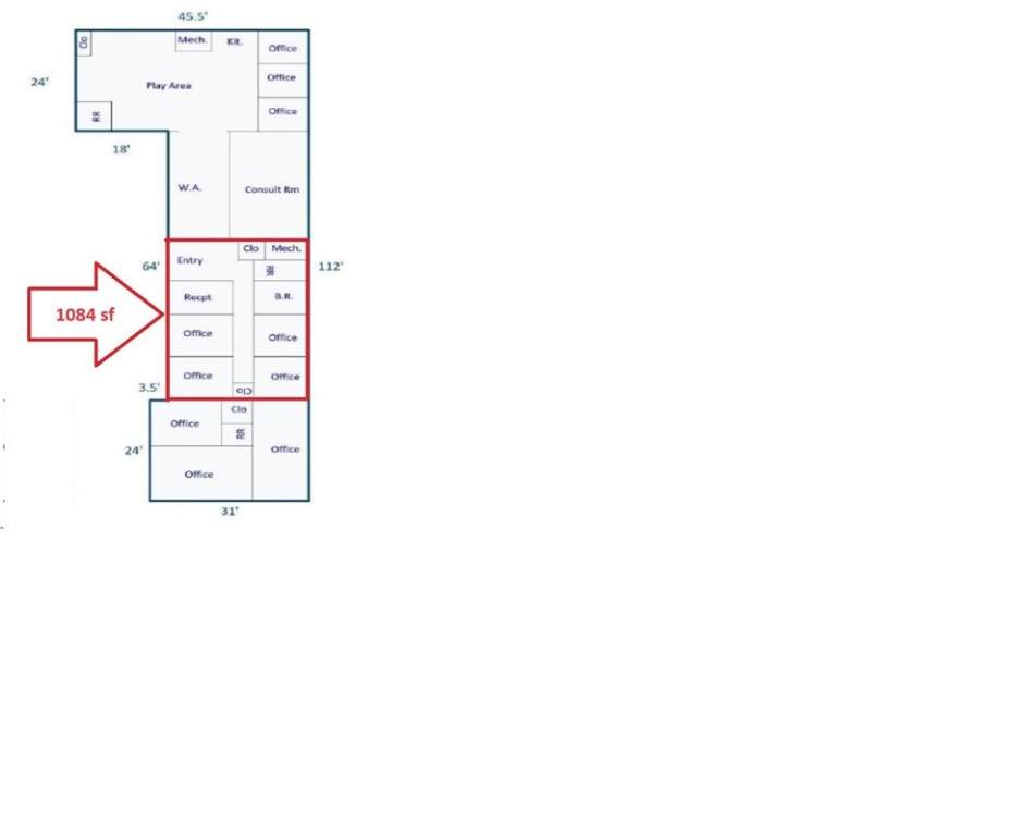
EXCELLENT LOCATION IN ROBINSON TOWNSHIP, MINUTES TO PITTSBURGH AND THE AIRPORT, 1084 SF OFFICE, SEPARATE ENTRANCES, MOVE IN READY, BUSINESS SIGNING ON STEUBENVILLE PIKE, AMPLE PARKING, BY APPOINTMENT ONLY. ZONED C-2



© 2025 West Penn Multi-List, Inc. All Rights Reserved. INFORMATION DEEMED RELIABLE, BUT NOT GUARANTEED. IDX information is provided exclusively for consumers' personal, non-commercial use and may not be used for any purpose other than to identify prospective properties consumers may be interested in purchasing. Data last updated: 2025-11-08T06:46:12.977.
www.searchpittsburghrealestate.com/homes/158895759
Print Image

5676 Steubenville Pike. Robinson Twp, PA 15136

  • Price: $11
  • Status: Active
  • On Site: 324 Days
  • Updated: 39 min ago
  • MLS #: 1683215
0
Beds
0
Baths
0
½ Baths
1.13
Acres
Neighborhood:
Robinson Twp - Nwa
County:
Allegheny-Northwest
Area:
Robinson Twp - Nwa
Property Description
EXCELLENT LOCATION IN ROBINSON TOWNSHIP, MINUTES TO PITTSBURGH AND THE AIRPORT, 1084 SF OFFICE, SEPARATE ENTRANCES, MOVE IN READY, BUSINESS SIGNING ON STEUBENVILLE PIKE, AMPLE PARKING, BY APPOINTMENT ONLY. ZONED C-2
Exterior Features

Construction Materials Brick Road Frontage Type County Road

Property Features

Lease Amount 11 Property Sub Type Office Property Sub Type Additional Office Tax Annual Amount 19796 Utilities Electricity Available Natural Gas Available Sewer Available Water Available Zoning C-2

Courtesy of COLDWELL BANKER REALTY: 412-833-5405. © 2025 West Penn Multi-List, Inc. All Rights Reserved. Information Deemed Reliable But Not Guaranteed.


© 2025 West Penn Multi-List, Inc. All Rights Reserved. INFORMATION DEEMED RELIABLE, BUT NOT GUARANTEED. IDX information is provided exclusively for consumers' personal, non-commercial use and may not be used for any purpose other than to identify prospective properties consumers may be interested in purchasing. Data last updated: 2025-11-08T06:46:12.977.
 
https://bt-photos.global.ssl.fastly.net/pittsburgh/orig_boomver_1_1683215-2.jpg https://bt-photos.global.ssl.fastly.net/pittsburgh/orig_boomver_1_1683215-2.jpg https://bt-photos.global.ssl.fastly.net/pittsburgh/orig_boomver_1_1683215-2.jpg
Logo
Broadview Realty
Serving Your Real Estate Needs
in Pittsburgh PA,